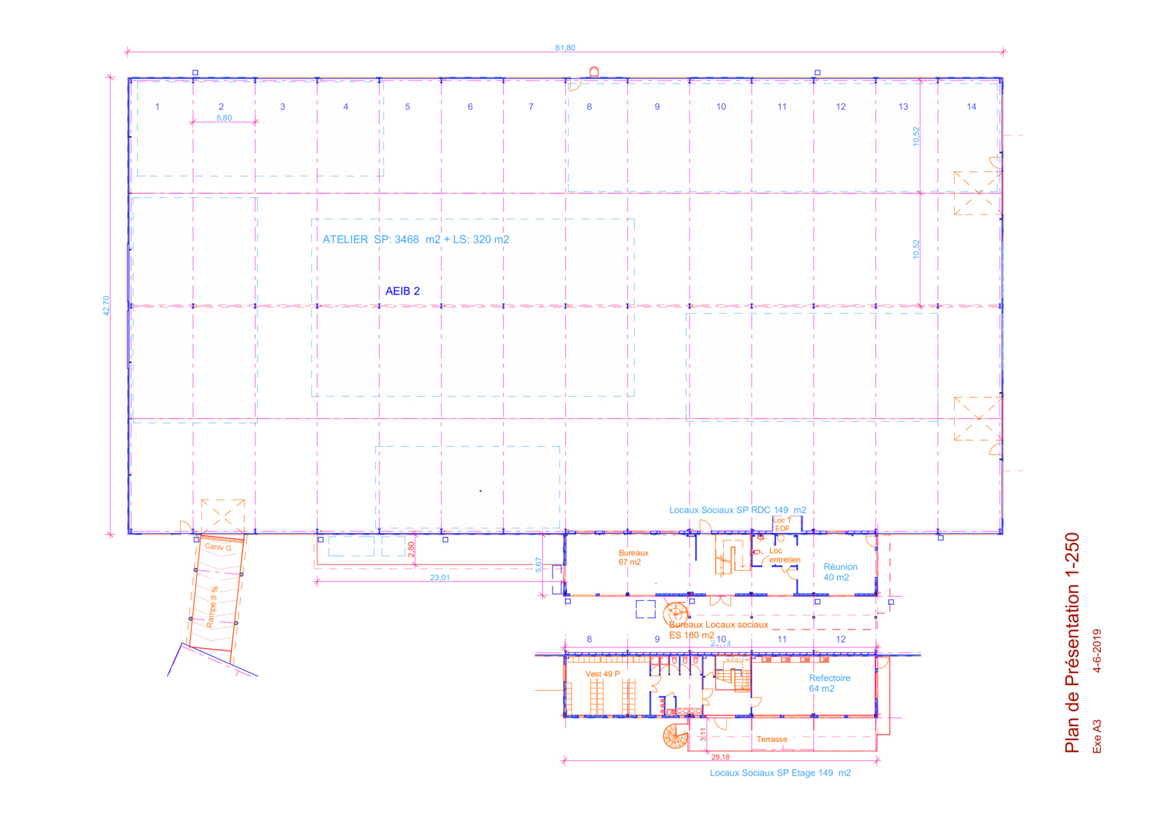
Usine AEIB 2 Tresses
Usine de fabrication mécanique, Atelier: 3470 m2 + Bureaux 298 m2
Réalisation 2019-20 Cout 2 400 000 TTC
Chai Viticole Gironde
Petit chai traditionnel 215 m2 212 000 E
Chantier 2021
Projet d’usine à MIOS 33
Projet de Construction d'un Batiment Industriel composé de :
Atelier 10 000 m2 sur de 2 halls de 25 m de portée, sur 170 m de long
Bureaux 2 000 m2, indépendants, conçus autour d’un patio central
Locaux sociaux 500 m2 intégrés a l'atelier
L’ensemble en Construction Métallique
Mission: Concours 2011(conception réalisation)
Construction: Usine TECHNIGAINE (Gironde)
Projet Construction Métallique, Chantier 2010 à Tresses 33 370
Bâtiment composé de 2 halls de 15 m de portée sur 66m de long
2000 m2 d’Atelier et 400 m2 de Bureaux,
Ossature, bardage, couverture métallique
Bâtiment livrée clef en main, 6 mois de chantier
Coût HT avec VRD, viabilité : 1,2 M EurosMission : Maîtrise d’œuvre :
Projet + Permis de construire + Appel d’Offres + Coordination de Travaux
Construction usine AEIB à Tresse 33 370
Projet Construction Métallique, Chantier 2008 - 09 à Tresses 33 370
Bâtiment composé de 2 halls de 21 m de portée sur 50 m de long
2000 m2 d’Atelier et 240 m2 de Bureaux,
Ossature, bardage, couverture métallique
Bâtiment livrée clef en main, 9 mois de chantier
Coût HT avec VRD, viabilité : 1 M EurosMission : Maîtrise d’œuvre :
Projet + Permis de construire + Appel d’Offres + Coordination de Travaux
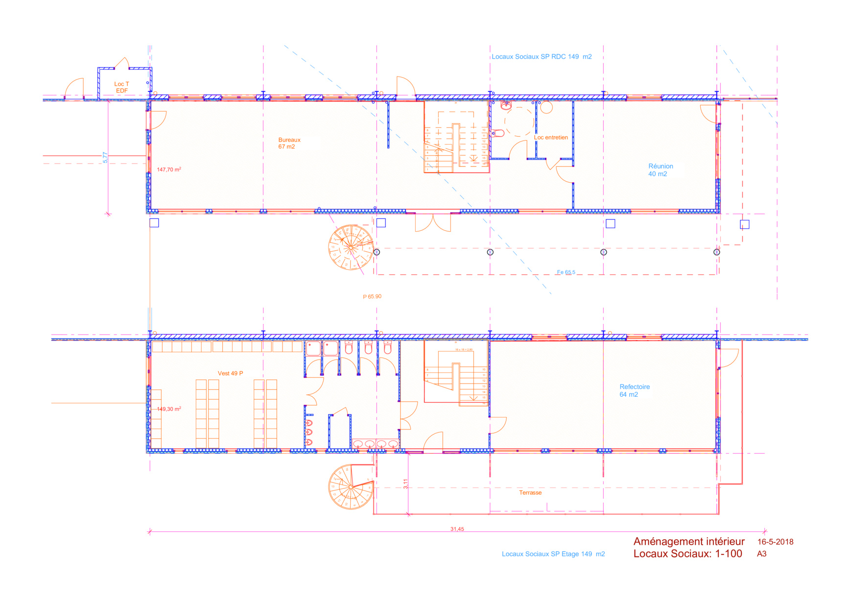
RESUTRUCTURATION ATELIER ET BUREAUX à Preignac 33
Projet 2013-14 portant sur 630 m2 d'Atelier, 280 m2 de Bureaux, 135 m2 de Mezzanine pour 250 000 E ht
Restructuration des ateliers, avec création de surfaces de stockage en Mezzanine
Restructuration de la Façade
Réorganisation des bureaux
Projet de Construction d'un ATELIER DE METALLERIE (Gironde)
CONSTRUCTION D’UN PETIT ATELIER AVEC BUREAUX
Atelier pour un Artisan de Menuiserie Alu à Saucats, Etude 2008
Construction métallique
400 m2 d’atelier + 160 m2 de bureaux
Mission de permis de construire
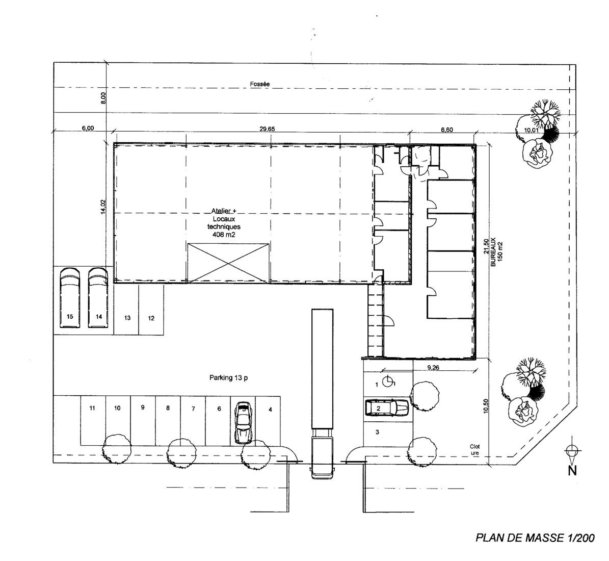
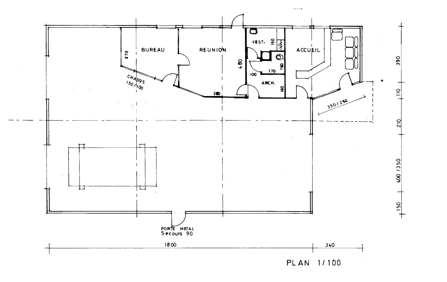
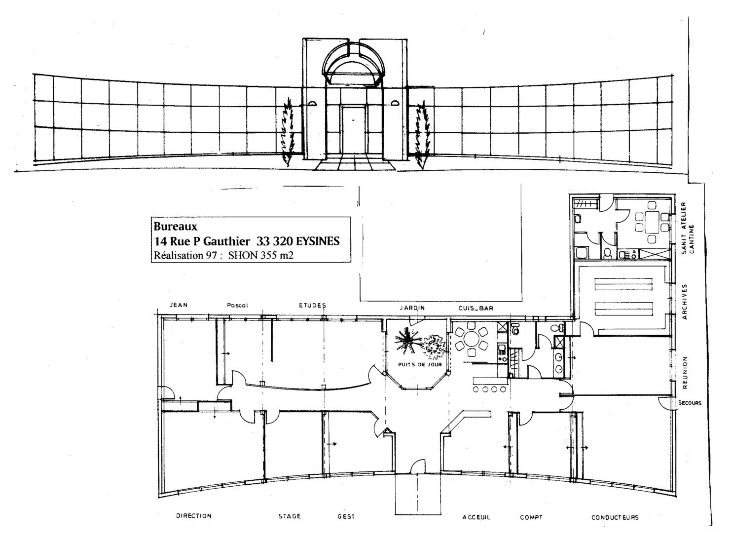
PROJET DE BUREAUX (Gironde)
Bureaux d’entreprises intégrés au dépôt
Construction métallique
Projet 2001, 350 m2 à Cenon 33Mission : Projet + Permis de Construire
PROJET D'USINE AVEC CENTRALE A BETON
Atelier de préfabrication béton
3250 m2 + 200 m2 de bureaux
Projet 2008 à St Jean d’Illac 33
Mission Permis de construire
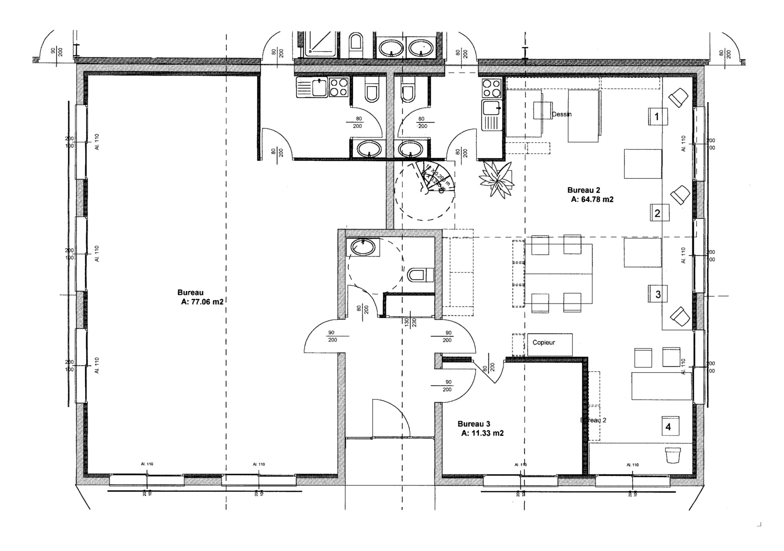
AGENCEMENT INTERIEUR DE BUREAUX (Gironde)
Aménagement intérieur pour agencement de bureaux
Projet 2001, 150 m2 à Cenon 33Mission : Projet
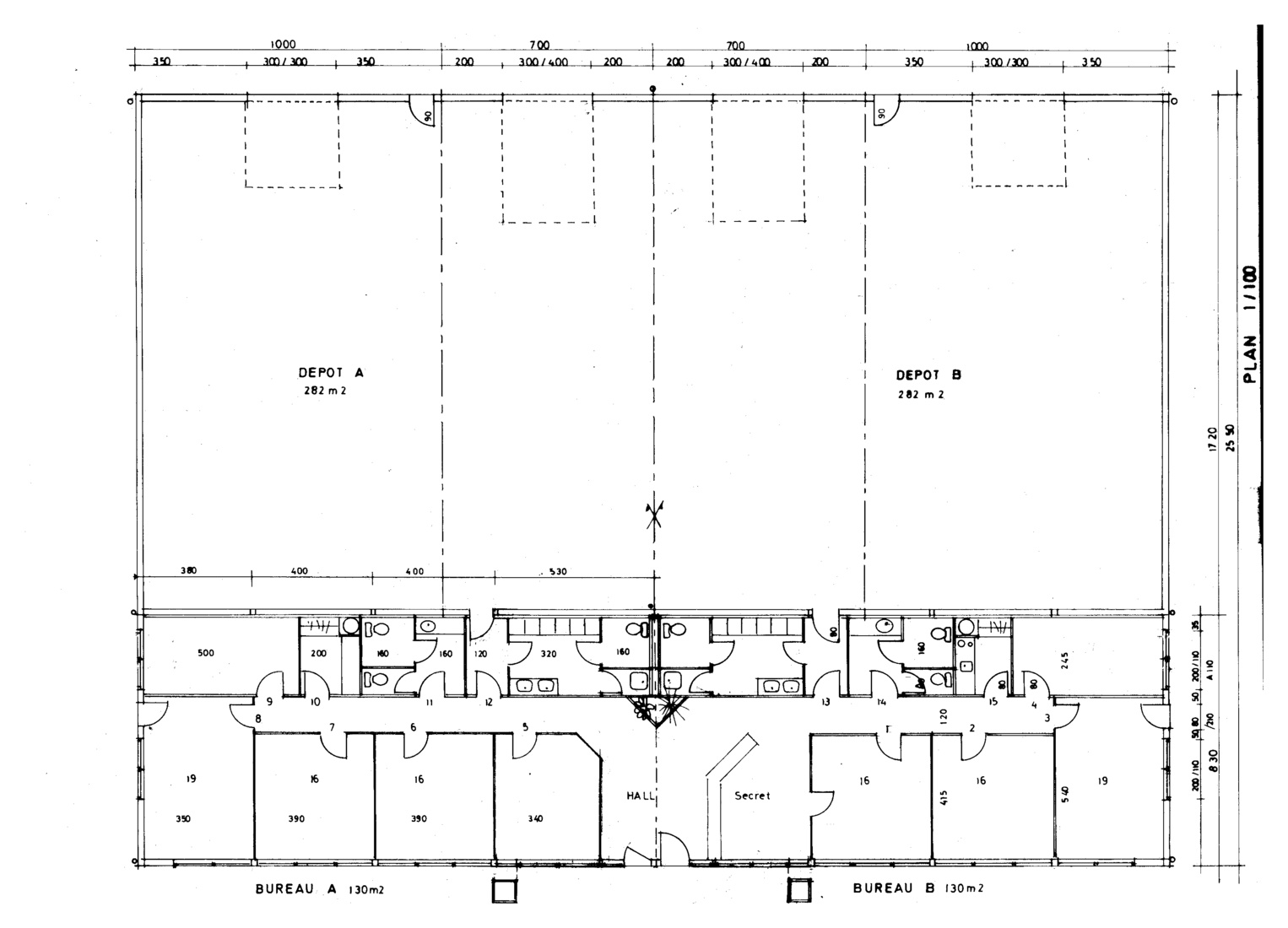
Projet de Construction pour BUREAUX et DEPOT (Gironde)
Dépôt d’entreprise avec bureaux intégrés dans la structure
Projet 1999, Bureaux 260 m2 Dépôt 560 m2 à MartignasMission : Permis de Construire
Projet de Construction de BUREAUX (Gironde)
Construction de bureaux pour Entreprise du bâtiment
Projet 1997, 300 m2 à EysinesMission : Permis de Construire
Projet Petit Batiment Industriel : ATELIER DE MECANIQUE (Gironde)
Construction d’un petit Local économique, de 235 m2 pour CT automobile
Projet 1995, à St Loubes 33
Mission : Permis de Construire