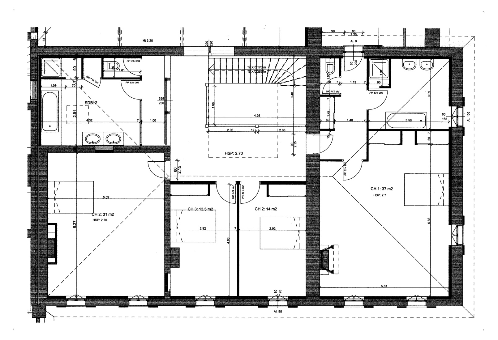
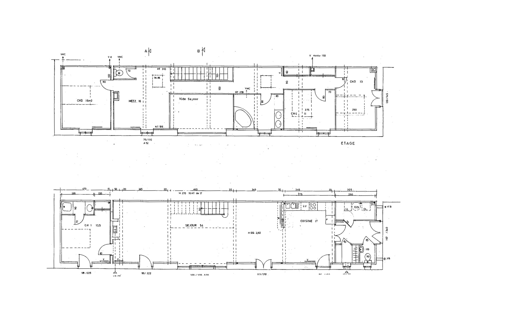
Renovation d'une Maison Bourgeoise Gironde 2019
Rénovation d'un ensemble immobilier du 18-19 eme siecle sur Quinsac avec restauration Pierre, Rénovation Thermique, mise aux normes assainissement, electricité Sanitaires Chauffage...
335 m2 Habitable, Cout 350 000 E TTC, Chantier 2018-2019Châteaux et Grandes Demeures
TRAVAUX D'ENTRETIEN-RENOVATION
Toiture immeuble Rue de Seze Bordeaux Quinconces 2015Rénovation complète d'une toiture de 325 m2, avec ses verrieres, au 5eme niveau, plein cœur de Bordeaux
75 000 E TTC, chantier 2015Travaux de Ravalement, Restauration, et d’entretien
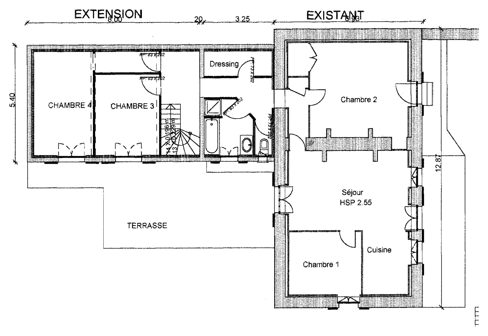
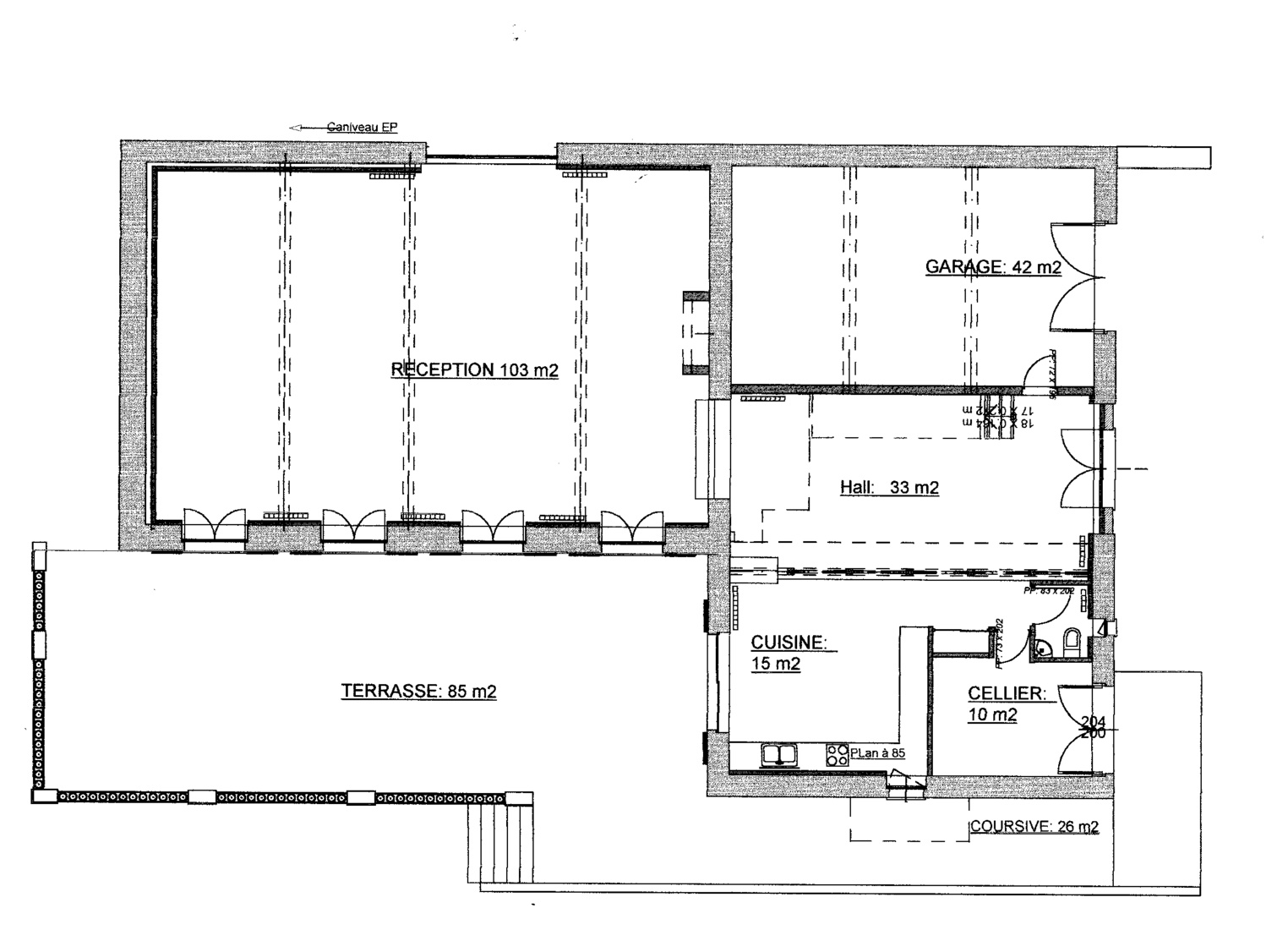
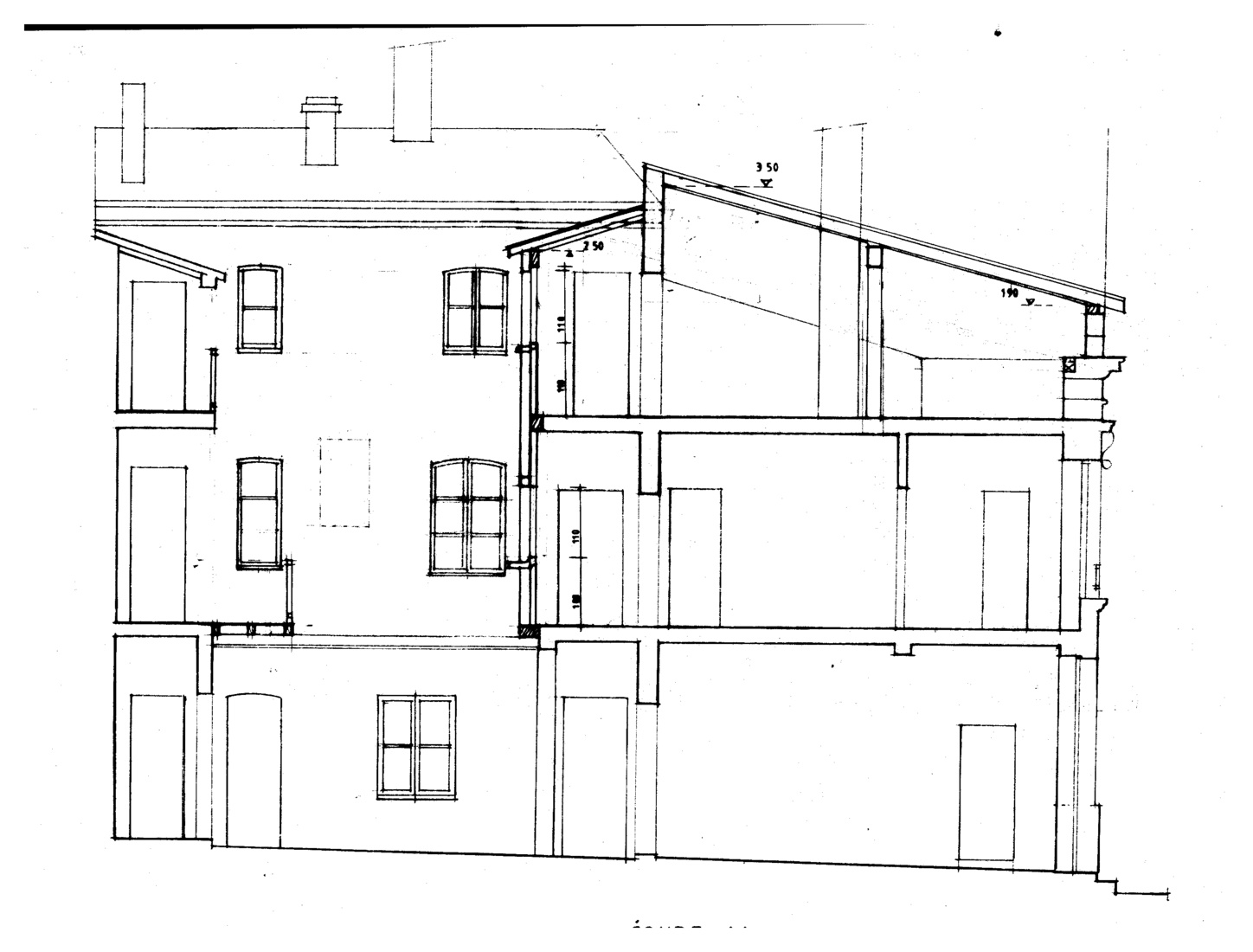
Rénovation Extension d'une Maison de Maitre
SADIRAC 33 670Rénovation et extension d'une battisse du 19 eme siecle
Budget 260 000 E ttc, 395 m2, réalisation 2016-17Châteaux et Grandes Demeures
Restauration d'un CHÂTEAU EN GIRONDE
Projet réalisé de 2002 à 2005 à Quinsac, en deux tranches
Tranche 1 : aménagement de 250 m² pour 243 000 € TTC
Tranche 2 : aménagement de 90 m² pour 106 000 € TTCTravaux de restauration portant sur la structure, le plancher, la toiture et la menuiserie
Travaux de VRD, enfouissement des réseaux, et mise aux normes de l'assainissement
Travaux d’aménagement intérieur portant sur tous les équipements techniques
Travaux de décoration et d’architecture intérieure, agencementUsage résidentiel pour un client étranger
Mission : maîtrise d’œuvre complète
État des lieux, diagnostic, projet complet + permis de construire + coordination des travauxChâteaux et Grandes Demeures
Projet d'extension pour aménager une SALLE DE RÉCEPTION dans un CHÂTEAU (Gironde)
Simulation informatique pour l’insertion du projet
Étude réalisée en 2009, à Arbanat (Gironde)Châteaux et Grandes Demeures
Restructuration intérieure d'une Chartreuse
Tresses 33370Rénovation complete avec restructuration d'une Echoppe
Chantier 2016 135 m2 budget 156 000 E ttcMaisons, Fermes, Chais de Gironde
Restauration d'une ANCIENNE DEMEURE (Gironde)
Projet réalisé en 1991 à Quinsac , portant sur une tranche de 250 m² pour 900 m² au total
• Travaux de restauration portant sur la structure, le plancher, la toiture et la menuiserie
• Travaux de VRD et mise aux normes de l'assainissement
• Travaux d’aménagement intérieur portant sur tous les équipements techniques
• Travaux de décoration et d’architecture intérieure, agencementMission : Maîtrise d’œuvre
Projet complet + permis de construire + coordination des travauxChâteaux et Grandes Demeures
Réhabilitation d'un CHAI (Cadillac)
Reconversion d'un chai agricole en habitation, rénovation complète avec restructuration de la façade
L’aménagement intérieur est structuré autour d’un vide central ouvert sur l’escalier et la charpente
Étude de 2008 à Cadillac (Gironde)
Mission : projet d’aménagement avec perspective de volumétrie intérieure + permis de construireMaisons, Fermes, Chais de Gironde
Réhabilitation d'un CHAI URBAIN (Créon)
Rénovation d'un petit chai de 40 m² au sol, en ville, reconverti en habitation de 80 m² pour 77 000 € TTC
Espace organisé autour d’un escalier ouvert
Opération réalisée en 2006, à Créon (Gironde)
Mission : maîtrise d’œuvre
Projet + permis de construire + coordination des travauxMaisons, Fermes, Chais de Gironde
Rénovation d'une MAISON DE VILLE (Mérignac)
Réhabilitation complète d’une échoppe du XIXème siècle avec son chai
Création d’une galerie de jonction vitrée
Chantier de 2006, 225 m² habitables, 291 000 € TTC à Mérignac (Gironde)
Mission : Maîtrise d’œuvre complète
Projet + permis de construire + coordination des travauxMaisons, Fermes, Chais de Gironde
Rénovation complète d'une FERME (Gironde)
Reconversion d’un chai viticole et réhabilitation de l’habitation existante, avec :
• Démolition des cuves bétons par découpage
• Démontage et remplacement de tous les planchers
• Création d’ouvertures en pierre en sous-œuvre
• Toitures, menuiserie en bois à l’ancienne
• Équipements techniques, électricité, sanitaires
• Agencement et architecture intérieure, escalier
• Chauffage par PAC (aérothermie)
• Mise aux normes de l'assainissement
Chantier de 2009/2010: 325 m² habitables, 352 000 € TTC à Virelade (Gironde)
Mission : Maîtrise d’œuvre complète
Projet + permis de construire, dossier de l'assainissement + coordination des travauxMaisons, Fermes, Chais de Gironde
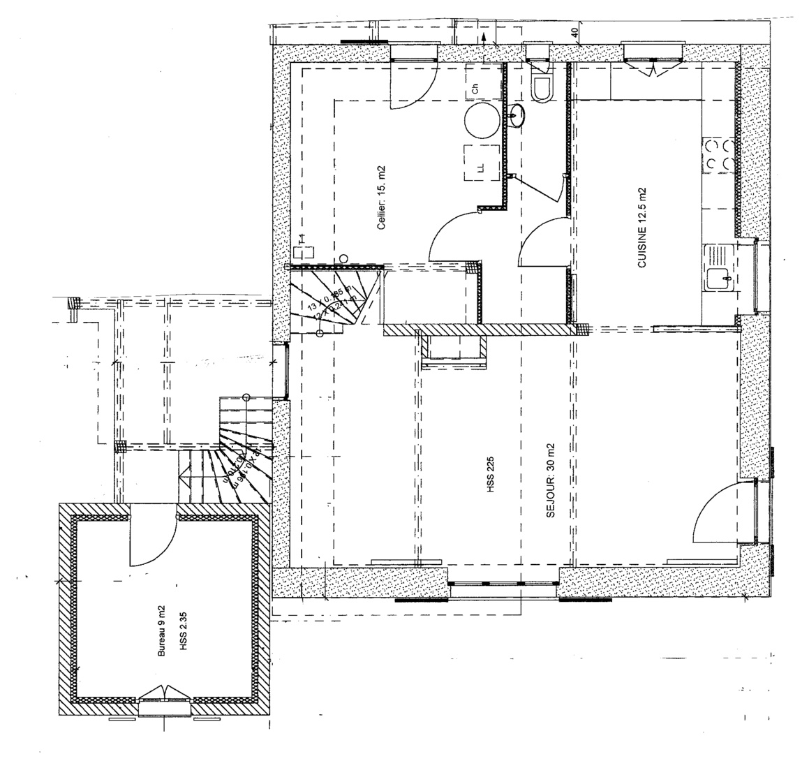
Rénovation reconstruction en Pierre
Petite maison de 60 m² au sol, abandonnée
Le projet s’est fait en deux temps :
- Restauration de la partie existante -> 110 000 € TTC
- Extension par rajout d’une tour -> 75 000 € TTC
L’ensemble a été refait à l’ancienne, avec reconstruction en pierre
Projet de 2003/2005 à Quinsac (Gironde)
Mission : maîtrise d’œuvreMaisons, Fermes, Chais de Gironde
Projet de rénovation d'une FERME (Gironde)
Projet de 2003 à Lugon (Gironde)
Domaine agricole, en bord de Dordogne, 420 m² habitablesProjet comprenant la restauration d’une maison, la réhabilitation d’un chai et les aménagements intérieurs
La structuration s’est faite autour d’un escalier intérieur ouvert
Restauration dans la tradition, avec menuiserie à l’ancienne
Mission : projet completMaisons, Fermes, Chais de Gironde
RÉHABILITATION D’UN CHAI (Sud Gironde)
Ancien annexe d’un couvent, du 19 ème, reconvertie en habitation
Projet sous avis de l’Architecte des Bâtiments de France (ABF)
L’aménagement intérieur est structuré autour d’un escalier central ouvert et :
• Restauration et réorganisation des ouvertures en façade
Création d’une baie monumentale en pierre
Préservations des édifices Architecturaux annexes
• Couverture à l’ancienne et menuiseries neuves
• Construction des plancher intérieurs bois
• Agencements intérieurs, et équipements
L’aménagement intérieur est structuré autour d’un escalier central ouvertChantier 2000, à LANGON 33 GIRONDE
190 m2 ha pour 126 000 E ttc
Mission : Maîtrise d’œuvre complèteMaisons, Fermes, Chais de Gironde
RESTAURATION D’UN MOULIN EN PERIGORD (Dordogne)
Ce projet en 2 parties, a porté sur la réhabilitation d’une grange, et la reconstruction de la maison en ruine
L’ensemble en lieux d’accueil, gîte de tourisme
La Minoterie en ruine, a été stabilisée
Projet 2005-2006 sur la vallée de l’Isle à Nantheuil 24 (Dordogne)
Mission réalisée : Projet + Autorisations AdministrativesMaisons, Fermes, Granges du Périgord
RÉHABILITATION D’UNE GRANGE en Périgord Vert (Dordogne)
Projet 2004 à la Tuiliere , en Périgord Vert (Dordogne)
Projet comprenant la restauration d’une maison, la réhabilitation d’une grange, avec construction d’une tour pour réunir et structurer l’ensemble
Cette restauration dans la tradition, est à usage résidentiel pour un client étranger
Superficie : 350 m2 ha + 110 d’annexe
Mission : Projet complet avec PCMaisons, Fermes, Granges du Périgord
RÉHABILITATION D'UNE GRANGE en Périgord
Projet de restructuration de façade, avec aménagements intérieurs
Projet 2011, en EsquisseMaisons, Fermes, Granges du Périgord
RENOVATION D’UNE FERMETTE EN PERIGORD
Projet 2003 à la Gondie, en Périgord Vert
Projet comprenant l’extension d’une maison de campagne
Implantation dans un coteau boisé
Restauration dans la tradition, et l’économie
Usage résidentiel pour un client étranger
Superficie extension : 75 m2 ha pour 80 000 E TTC
Mission : Maîtrise d’œuvre (Projet complet + PC + Coordination des travaux)Maisons, Fermes, Granges du Périgord
RENOVATION D’UNE MAISON BOURGEOISE Année 20 en Périgord (Dordogne)
Rénovation complète avec, restructuration :
• Ravalement de façade, couverture Ardoise, menuiserie extérieure
• Aménagements intérieurs, et tous les équipements
• Mise aux normes assainissement
• Aménagements extérieurs, terrasseSuperficie 300 m2 ha pour 283 000 E TTC
Projet 2001 à Preyssac , en Périgord VertMission : Maîtrise d’œuvre (Projet complet + PC + Coordination des travaux)
Maisons, Fermes, Granges du Périgord
REHABILITATION D’UNE GRANGE Année 30 en Périgord Vert
Rénovation d’une grange, en conservant tous les ouvrages bois existant
Espace ouvert sur les charpentes et la montée d’escalier
Superficie aménagée : 350 m2
Projet 2002 à Preyssac en Périgord VertMission réalisée : Esquisse avec visualisation 3D
Maisons, Fermes, Granges du Périgord
RENOVATION D’UNE MAISON DE MONTAGNE DANS LES PYRENEES
130 m2 habitable, à Hechettes , réalisée en 2011
Conception des Plans, Projet Permis de Construire, ChantierMaisons, Fermes des Pyrénées
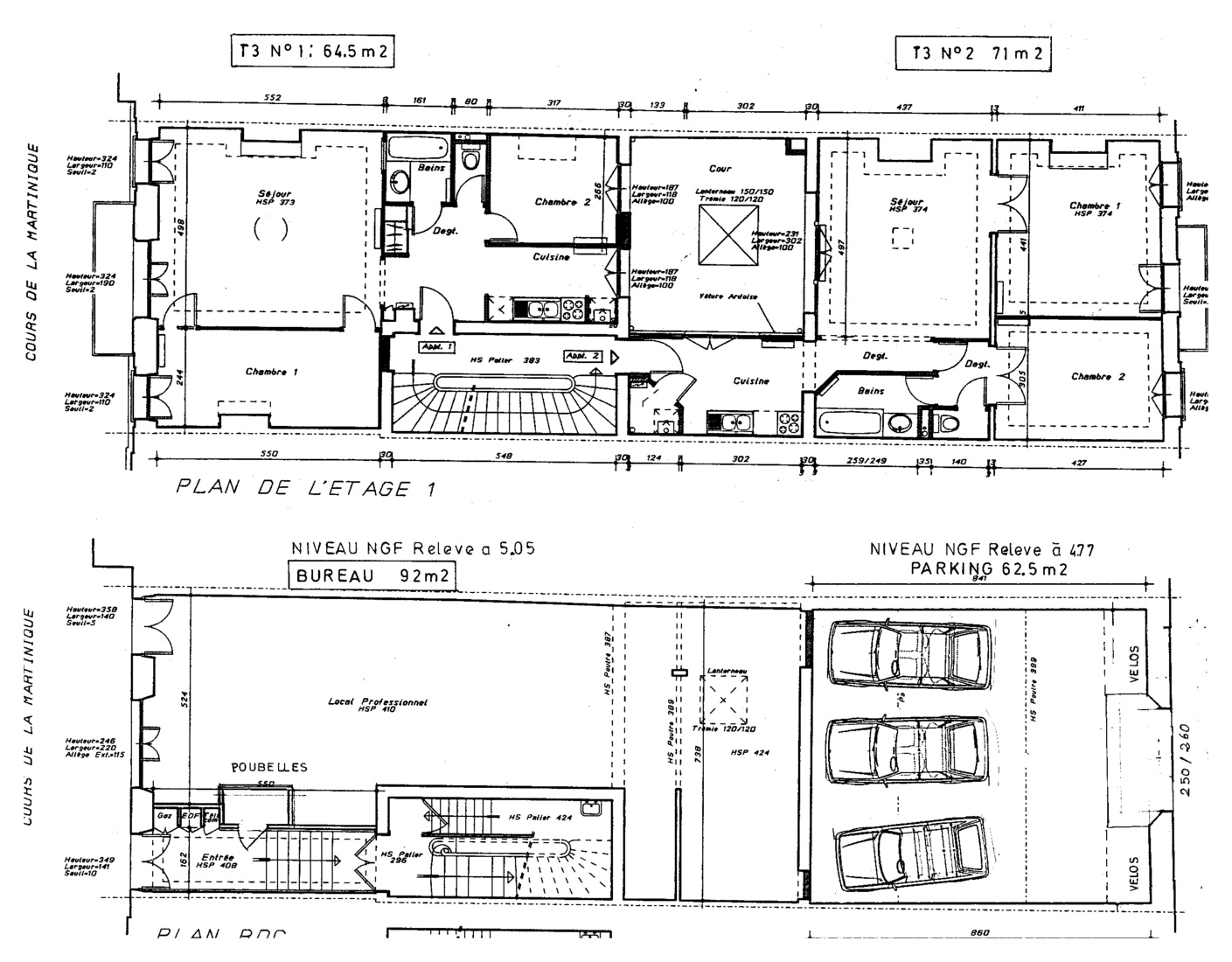
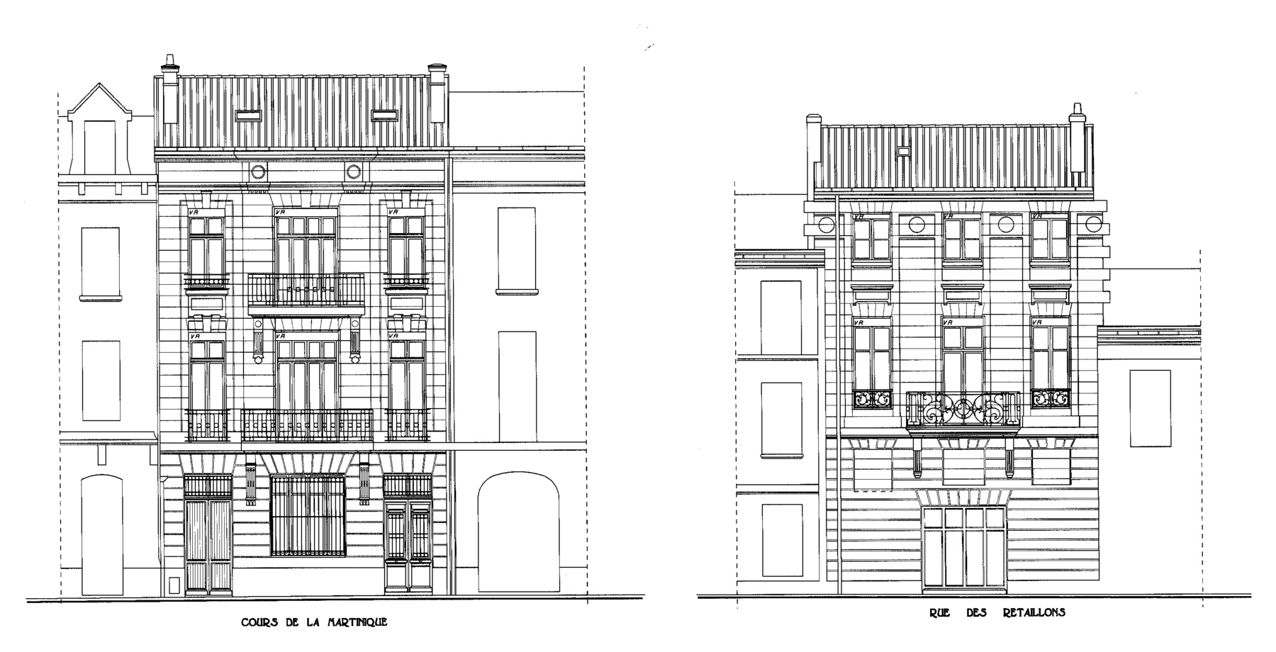
RENOVATION IMMEUBLE BORDEAUX
Immeuble R+3 , 19e au 51 crs de la Martinique
Réhabilitation pour créer 4 logts locatifs + commerce
Rénovation complète comprenant :
Travaux de ravalement, couverture, menuiserie, et agencement intérieur
Projet 2002, 307 m2 Ha + commerce, 333 000 E ttcMission : Coordination de Travaux , Dossier Subvention ANAH
Immeubles Anciens
TRAVAUX DE RENOVATION TOITURE ET VERRIERE
Immeuble Rue de Sèze Bordeaux Quinconces 2015Rénovation complète d'une toiture de 325 m2, avec ses verrieres, au 5eme niveau, plein cœur de Bordeaux
75 000 E TTC, chantier 2015Travaux de Ravalement, Restauration, et d’entretien
RENOVATION IMMEUBLE AU CHARTRONS (BORDEAUX)
Immeuble R+2 , 19e au 68 Rue Pomme d’Or
Réhabilitation pour créer 4 logts locatifs
Rénovation complète comprenant :
Restructuration de la cour intérieure (espace central)
Toiture refaite, par-dessus l’existante (déposée ensuite)
Réaménagement de tous les logts normes ANAH
Projet 99, 220 m2 Ha 120 000 F ttcMission : Maîtrise d’œuvre complète
Projet, Permis de construire, Coordination de Travaux
Dossier Subvention ANAHImmeubles Anciens
RESTAURATION DE FACADE, Rue D'Aviau, BORDEAUX 33
Travaux de ravalement encadrés par la Mairie de Bordeaux, et les Bâtiments de France
Immeuble 19 ème au 44 Rue D’Aviau
Façade avec brisis à la Mansard et couronnement par balustrade Pierre sur la corniche en façade sur le Jardin PublicOpération portant sur :
• Dépose de tous les réseaux en façade (EDF, Eau, Télécom…)
• Dépose des accessoires rajoutés (Stores, Enseignes…)
• Réfections des ouvrages: Pierre, Ferronnerie, Zinguerie, Toiture, Menuiserie
• Reprise totale des toitures et verrières
L’objectif étant la restitution de l’aspect origine
Opération en 2 tranches 2004-2006, T1 : 60 000 E ttc
Mission :
Maîtrise d’œuvre complète, Dossier de Subvention, Dossier ABFTravaux de Ravalement, Restauration, et d’entretien
RESTAURATION DE FACADE, Jardin Public, BORDEAUX 33
Travaux de ravalement encadrés par la Mairie de Bordeaux, et les Bâtiments de France
Immeuble 19 ème au 44 Rue D’Aviau
Façade avec brisis à la Mansard et couronnement par balustrade Pierre sur la corniche en façade sur le Jardin PublicOpération portant sur :
• Dépose de tous les réseaux en façade (EDF, Eau, Télécom…)
• Dépose des accessoires rajoutés (Stores, Enseignes…)
• Réfections des ouvrages: Pierre, Ferronnerie, Zinguerie, Toiture, Menuiserie
• Reprise totale des toitures et verrières
L’objectif étant la restitution de l’aspect origine
Opération en 2 tranches 2004-2006, T2 :48 000 E ttc
Mission :
Maîtrise d’œuvre complète, Dossier de Subvention, Dossier ABFTravaux de Ravalement, Restauration, et d’entretien
RESTAURATION DE FACADE, Place Tourny, BORDEAUX, 33
Travaux de ravalement encadrés par la Mairie de Bordeaux, et les Bâtiments de France
Immeuble 19 ème au 5 Place Tourny , toiture à la Mansard, avec brisis ardoiseOpération portant sur :
• Dépose de tous les réseaux en façade (EDF, Eau, Télécom…)
• Dépose des accessoires rajoutés (Stores, Enseignes…)
• Réfections des ouvrages: Pierre, Ferronnerie, Zinguerie, Toiture, Menuiserie
• Reprise totale des toitures et verrières
L’objectif étant la restitution de l’aspect origine
Opération 2004, 96 000 E ttc
Mission : Maîtrise d’œuvre complète avec Dossier SubventionTravaux de Ravalement, Restauration, et d’entretien
RESTAURATION DE FACADE, Cours Alsace Lorraine, BORDEAUX, 33
Travaux de ravalement encadrés par la Mairie de Bordeaux, et les Bâtiments de France
Immeuble 19 ème au 8 Cours Alsace Lorraine
Opération portant sur :
Dépose de tous les réseaux en façade (EDF, Eau, Télécom…)
Dépose des accessoires rajoutés (Stores, Enseignes…)
Réfections des ouvrages: Pierre, Ferronnerie, Zinguerie, Toiture, Menuiserie
L’objectif étant la restitution de l’aspect origineTravaux de Ravalement, Restauration, et d’entretien
TRAVAUX D'ENTRETIEN ET DE RESTAURATION : Palais de Justice de Bazas, (Gironde)
Chantier 1997 pour le Ministère de la Justice
Entretien du clos et couvert pour assurer la pérennité du bâtiment
Bâtiments caractérisés par une Architecture Néoclassique, avec des toitures complexes, hautes (sur les salles d’audiences), en tuiles et ardoises, et beaucoup d’ouvrages Zing
Points d’intervention par ouvrage:
• Renfort des charpentes en sous oeuvre
• Réfection à neuf des toiture Tuile et Ardoises
• Réfection des ouvrages Zing (Chéneaux, coiffes, entablements, noues, appuies…)
• Curetage des cours
• Reprise de pierre, des façades cour
Mission :
Maîtrise d’œuvre complète, avec diagnostic préalableTravaux de Ravalement, Restauration, et d’entretien
TRAVAUX D'ENTRETIEN ET DE RESTAURATION: Palais de Justice de Blaye (Gironde)
Chantier 1997 pour le Ministère de la Justice
Entretien du clos et couvert pour assurer la pérennité du bâtiment, et rénovation intérieure, avec restructuration des bureaux
Bâtiments caractérisés par une Architecture Néoclassique, avec des toitures complexes, hautes (sur les salles d’audiences), en tuiles et ardoises, et beaucoup d’ouvrages Zing
Points d’intervention par ouvrage:
• Réfection à neuf des toiture Tuile et Ardoises
• Réfection des ouvrages Zing (Chéneaux, coiffes, entablements, noues, appuies…)
• Réfection installations de Chauffage, Electricité, Alarmes
• Travaux d’Agencement des bureaux et guichet d’accueil
Mission :
Maîtrise d’œuvre complète, avec diagnostic préalableTravaux de Ravalement, Restauration, et d’entretien