Club House 2019
Construction d'un Club-House pour la Pétanque à St Caprais
77 m2 141 000 E TTC VRD inclusBatiments Publics
Aménagement d'un Centre Equestre
Projet de construction d'un Centre Equestre comprenant Pool-House, Manège couvert, Ecuries, Carrieres, Rond de longe, Pistes sur un ensemble boisée de 12 Ha dans la Forêt de la Double, à St Antoine
Projet 2013, en coursBatiments Publics
Centre de loisir avec Hebergement
Aménagement de Gites, chambres d'Hôtes avec Piscine couverte, Spa, Sauna, Salle de réception, Salle de jeux, dans une ancienne ferme en Périgord Vert
Projet 2013-14, de 750 000 E pour 500 m2 aménagéBatiments Publics
Construction d'un CABINET DENTAIRE (Gironde)
Cabinet de Chirurgie Dentaire réalisé en 2009 à Quinsac
Equipé de 2 postes + Salle de Chirurgie : 110 m2, 220 000 E TTC
Construction traditionnelle, dans le respect des prescriptions de l’Architecte des Bâtiments de France (ABF)
Mission :
Conception des Plans, Projet Permis de Construire, Chantier, avec coordination de travaux, Gestion des réseaux, Implantation des fauteuilsCabinets Médicaux
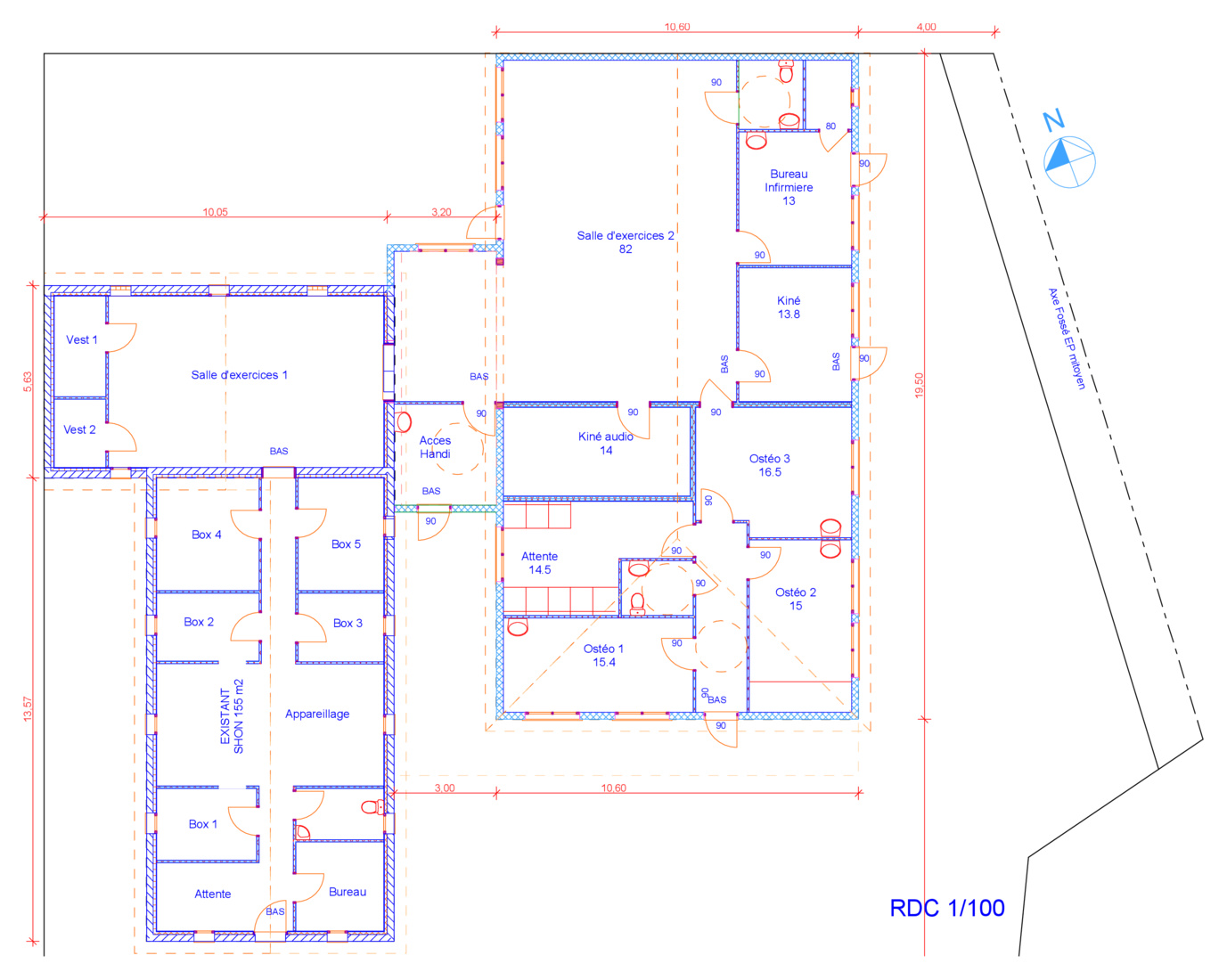
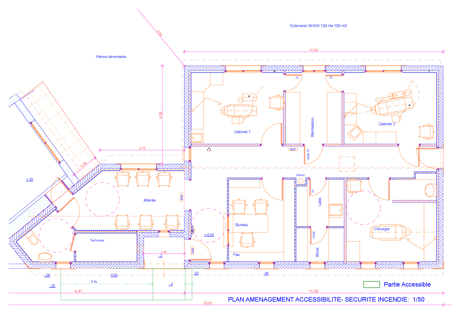
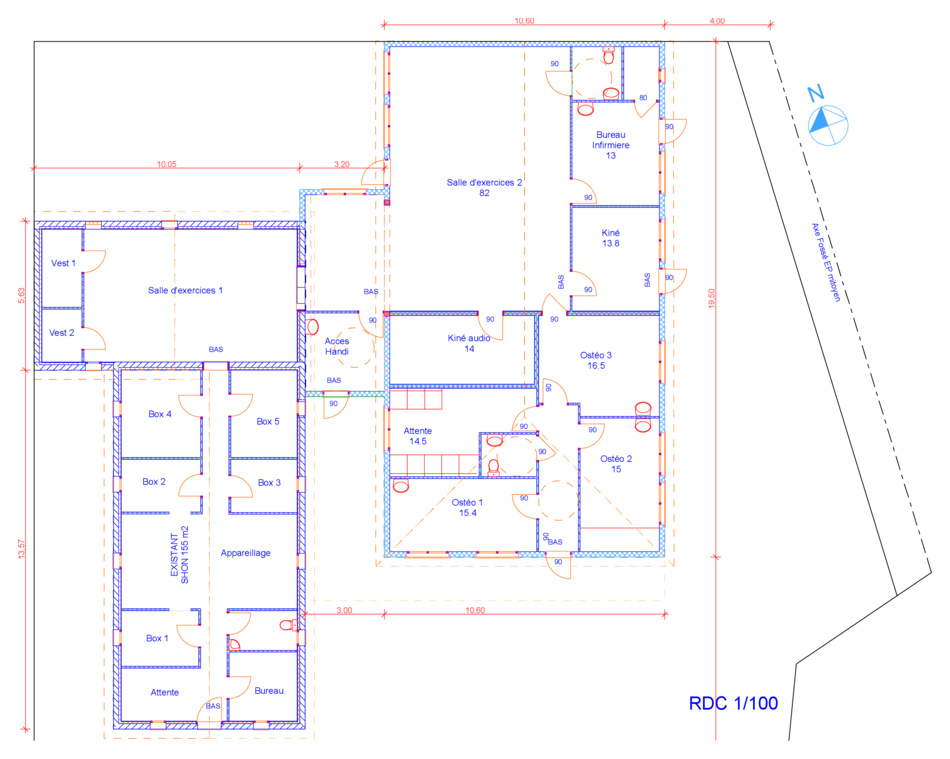
Extension d'un CABINET DE KINESITHERAPIE (Gironde)
Extension de 210 m2 pour porter le cabinet à 344 m2
Projet 2008, limitée aux Projet et demandes administratives (Permis de construire, Sécurité Incendie, Accessibilité HandicapésCabinets Médicaux
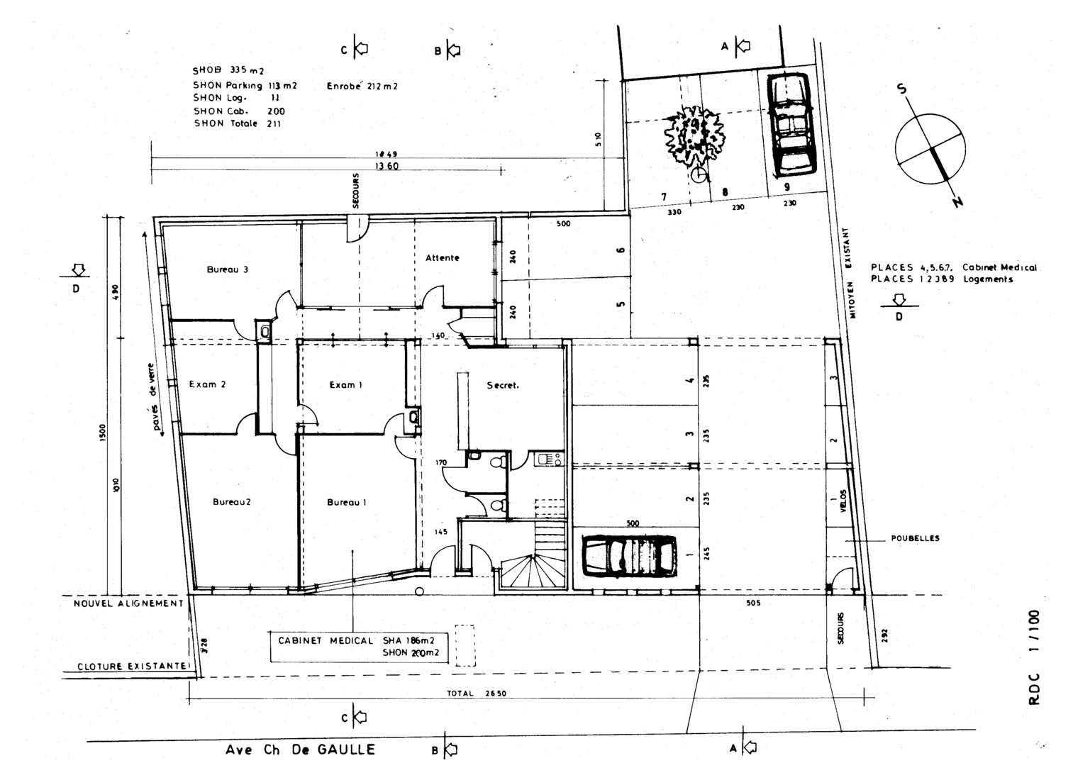
Construction d'un CABINET DE CARDIOLOGIE (Bordeaux)
Cabinet de Cardiologie réalisé en 1997-98 à Caudéran
Projet comprenant : 1 cabinet de 186 m2 + 3 logements pour 186 m2Mission :
Conception des Plans, Projet Permis de Construire, Chantier avec coordination de travauxCabinets Médicaux
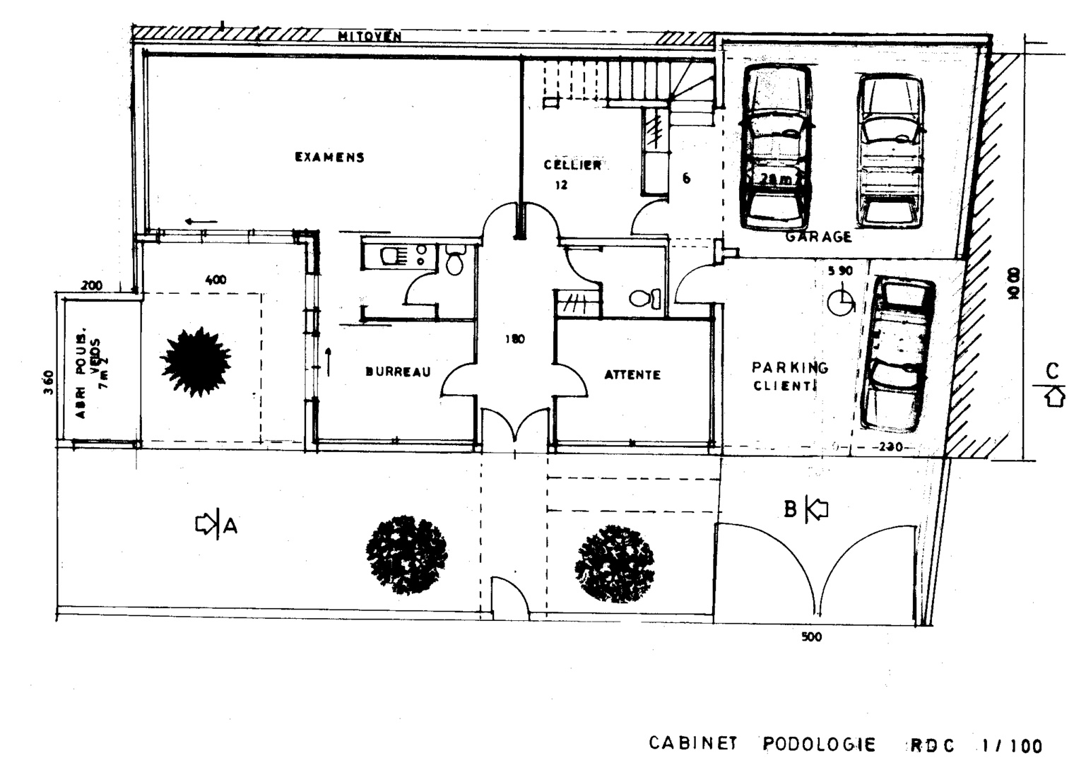
Construction d'un CABINET DE PODOLOGIE (Bordeaux)
Cabinet de Podologie réalisé en 1996-97 à Caudéran
Projet comprenant : 1 cabinet de 80 m2 + 1 logement de 110 m2
Petit terrain de 285 m2, le projet ne comporte qu’une seule façade
Architecture contemporaine, avec grands volumes vitrés, terrasse
2 patios latéraux pour augmenter l’éclairage intérieurMission :
Conception des Plans, Projet Permis de Construire, Chantier, avec coordination de travauxCabinets Médicaux
Aménagement et mise aux normes d'une SALLE DE RECEPTION (Gironde)
Intégré dans un Château de vignoble à Latresne, le projet à porté sur l’aménagement d’un établissement de 200 m2, classé ERP en 5 eme catégorie, pour 150 personnes, avec les mise aux normes :
• MISE AUX NORMES HANDICAPES
• MISE AUX NORMES INCENDIE
• MISE AUX NORMES ASSAINISSEMENT
Etude 2008, limitée aux Projet et demandes administrativesBatiments Publics
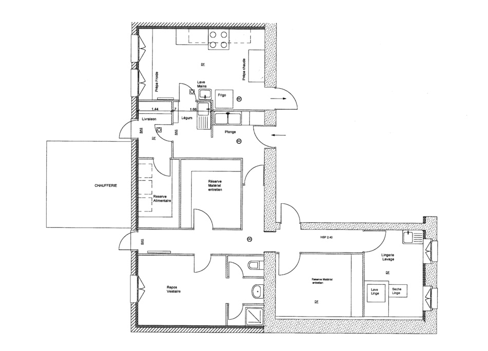
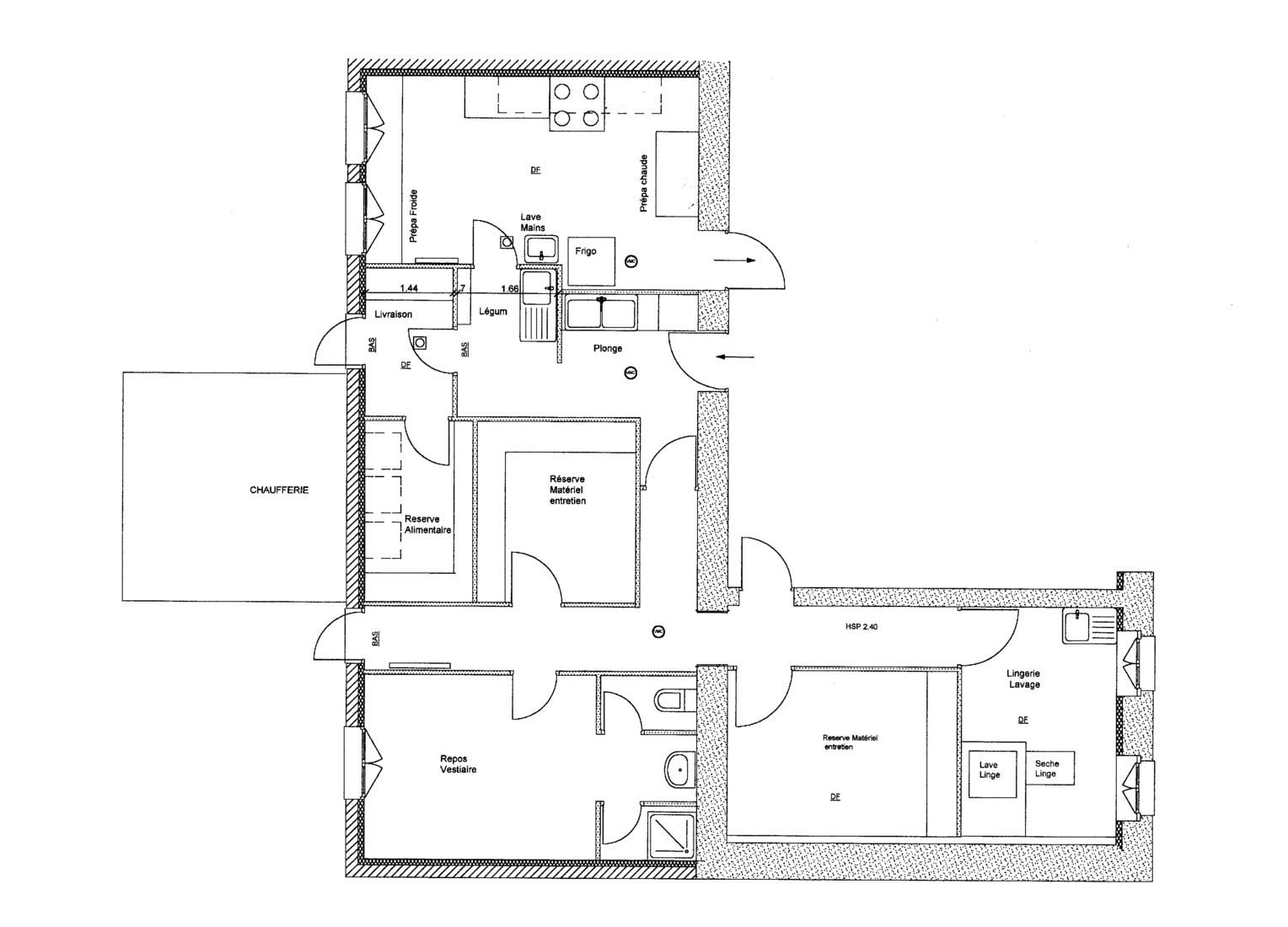
Aménagement de Cuisine pour Collectivité
Restructuration des cuisines, lingerie pour une maison de retraite
Projet 2005 à Quinsac comprenant :
• Mise aux normes Incendie, Elec
• Mise aux normes Services Vétérinaires
• Mise aux normes DDASS
Mission : Maîtrise d’Oeuvre
Projet de Manège couvert pour Centre Equestre (Gironde)
Concours 2005 pour centre équestre au Bouscat
Cathédrale du cheval en Lamellé-Collé
Structure de 31 m de portée sur 70 m de longBatiments Publics
Rénovation et Extension d'une AGENCE POSTALE (Gironde)
Ancienne Poste de Quinsac, le projet à portée sur :
• Rénovation des bureaux
• Agrandissement pour créer l’espace d’accueil
• Création d’un logement à l’étageProjet 2000, Arrêté après Appel d’Offres
Batiments Publics
EXTENSION CENTRE D’HEBERGEMENT
Extension d’un centre d’hébergement surveillé (CAE) pour le Ministère de la Justice
Travaux d’extension avec mise aux normes incendie de l’existant
Projet 1998 de 450 m2 à Pessac
Mission : Maîtrise d’œuvre complèteBatiments Publics
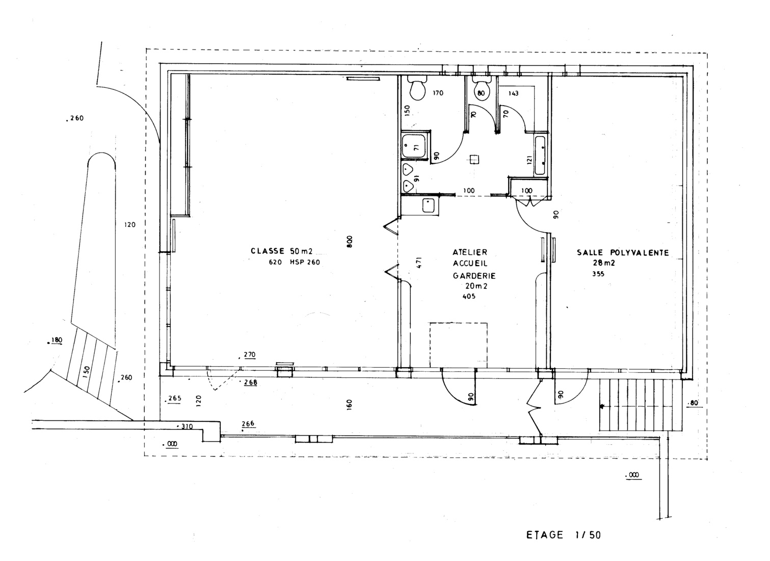
Extension d'une ECOLE MATERNELLE (Gironde)
Etude de faisabilité pour une Mairie, Projet 1997
Création d’une classe avec salle polyvalenteBatiments Publics
RENOVATION D’UNE MAIRIE (Gironde)
Restructuration complète d’une Mairie, réalisé en 1992
le projet à portée sur :
• Ravalement des façades, sous contrôle de l’ABF
• Restructuration des escaliers intérieurs
• Réfection des installations chauffage, plomberie, électricité
• Agencement de l’accueil, et de la bibliothèque
Mission : Maîtrise d’œuvre complèteBatiments Publics