Réhabilitation d'un IMMEUBLE (6 rue Buhan, Bordeaux)
Projet de 1986/1988: Réhabilitation en conformité avec la loi Malraux
Immeuble du XIXème
Mission et projet en collaboration
Immeuble 6 rue Buhan, BordeauxRéhabilitations en Secteur Sauvegardé 1 : Sud Ouest
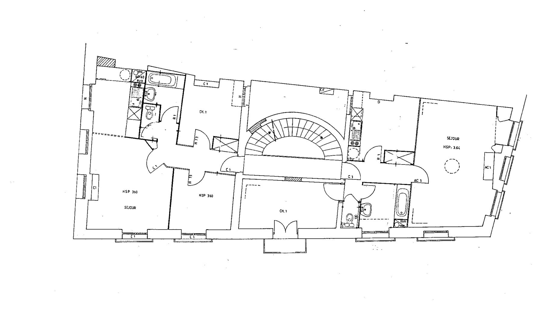
Réhabilitation d'un IMMEUBLE (18 Rue Buhan, Bordeaux)
Réhabilitation en conformité avec la loi Malraux
Rénovation complète d'un immeuble ancien du XVIIème siècle, 18 Rue Buhan à Bordeaux
Mission de 1985 à 1992, maitre d'œuvre assistantRéhabilitations en Secteur Sauvegardé 1 : Sud Ouest
Réhabilitation d'un IMMEUBLE (19 Rue Neuve, Bordeaux)
Projet de 1985/1988 en conformité avec la loi Malraux
Mission : maitre d’œuvre assistantRéhabilitations en Secteur Sauvegardé 1 : Sud Ouest
Réhabilitation Immeuble Imp Rue Neuve Bordeaux
Projet 1985-88 en Réhabilitation Loi Malraux
Mission : Projet en collaborationRéhabilitations en Secteur Sauvegardé 1 : Sud Ouest
Réhabilitation Immeubles Rue de la Rousselle Bordeaux (Grosse Cloche)
Projet 1985-88 en Réhabilitation Loi Malraux
Mission: Maitre d'oeuvre AssistantRéhabilitations en Secteur Sauvegardé 1 : Sud Ouest
Réhabilitation Immeuble 44 Q Richelieu, Bordeaux
Projet 1985-88 en Réhabilitation Loi Malraux
Immeuble des Quais: 17 eme
Mission : Projet en collaborationRéhabilitations en Secteur Sauvegardé 1 : Sud Ouest
Réhabilitation Immeubles 10-14 Rue du Soleil Bordeaux (Grosse Cloche)
Projet 1985-88 en Réhabilitation Loi Malraux
Mission : Projet en collaborationRéhabilitations en Secteur Sauvegardé 1 : Sud Ouest
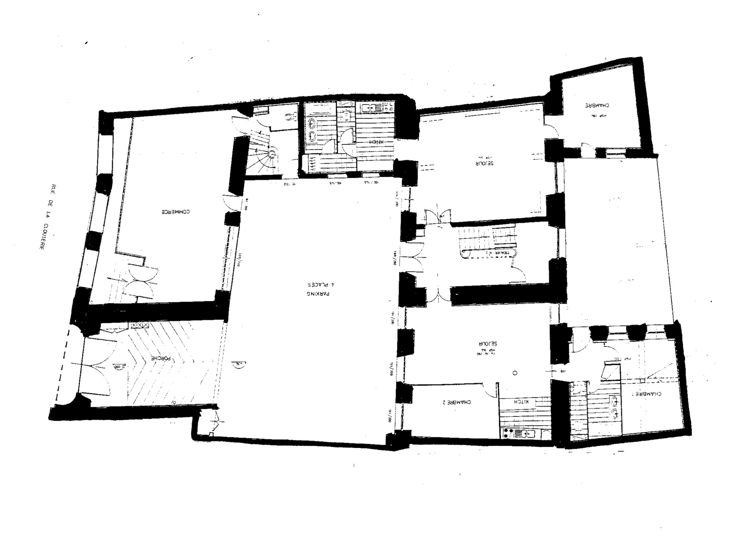
REHABILITATION Rue des Augustins Bordeaux St Michel , 33
Renovation complete d'un immeuble ancien à Bordeaux, Gironde
Missions 1985-1992: Maitre d'Oeuvre AssistantRéhabilitations en Secteur Sauvegardé 1 : Sud Ouest
Réhabilitation Immeubles Rue Gensan Bordeaux St Michel
Projet 1985-88 en Réhabilitation Loi Malraux
Mission : Projet en collaborationRéhabilitations en Secteur Sauvegardé 1 : Sud Ouest
Rehabilitation Immeubles: Bordeaux St Michel
Projet 1985-88 en Réhabilitation Loi Malraux
Mission : Projet en collaborationRéhabilitations en Secteur Sauvegardé 1 : Sud Ouest
Rehabilitation Immeubles Bordeaux St Pierre
Projet 1985-88 en Réhabilitation Loi Malraux
Mission : Projet en collaborationRéhabilitations en Secteur Sauvegardé 1 : Sud Ouest
Rehabilitation Immeubles Bordeaux St André
Projet 1985-88 en Réhabilitation Loi Malraux
Mission : Projet en collaborationRéhabilitations en Secteur Sauvegardé 1 : Sud Ouest
Réhabilitation Immeuble Bordeaux Fondaudège
Immeuble 58 Rue Croix de Seguey
Projet 1986-88 en collaborationRéhabilitations en Secteur Sauvegardé 1 : Sud Ouest
Rehabilitation immeubles Divers Bordeaux
Projets 1985-90 en tant que Architecte Collaborateur
Réhabilitations en Secteur Sauvegardé 1 : Sud Ouest
Aménagement Interieur Chte de Listrac
Projet 1986-88 comme Architecte Collaborateur
Réhabilitations en Secteur Sauvegardé 1 : Sud Ouest
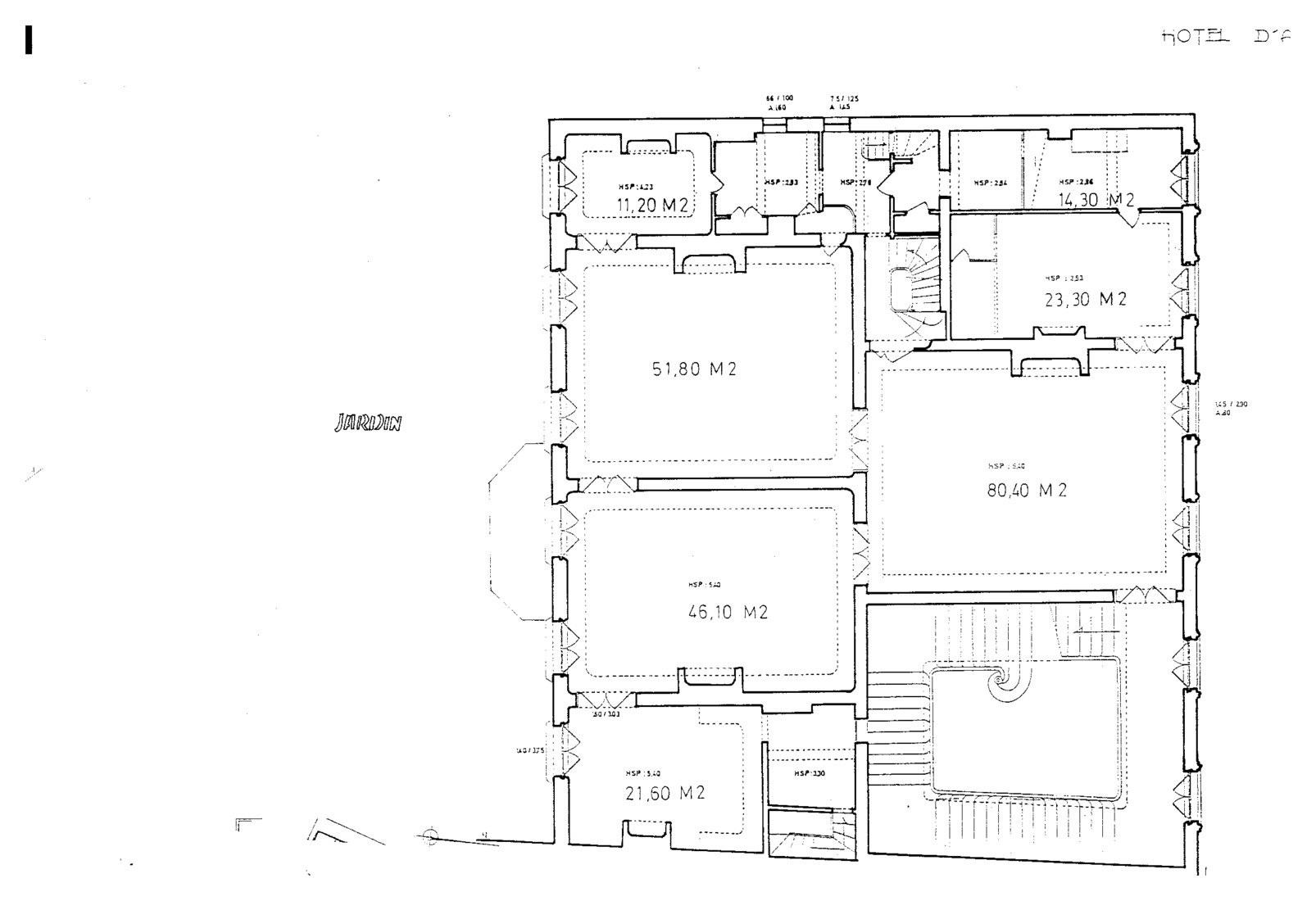
REHABILITATION Hotel de Divone Arles
Projet 1990, en Réhabilitation Loi Malraux
Mission d'étude de Projet, avec Diagnostic, en collaborationRéhabilitations en Secteur Sauvegardé 2 : Sud
REHABILITATION HOTEL D'ARLATAN Aixe en Provence
Projet 1989, en Réhabilitation Loi Malraux
Mission d'étude de Projet, avec Diagnostic, en collaborationRéhabilitations en Secteur Sauvegardé 2 : Sud
REHABILITATION Hotel Valabregue Avignon
Projet 1990, en Réhabilitation Loi Malraux
Mission Maitrise d'Oeuvre en collaborationRéhabilitations en Secteur Sauvegardé 2 : Sud
REHABILITATION Immeuble Rue Maguelone Tarascon
Projet 1990, en Réhabilitation Loi Malraux
Mission de Maitrise d'Oeuvre en collaborationRéhabilitations en Secteur Sauvegardé 2 : Sud
REHABILITATION Hotel Notre Dame de Méjan Nimes
Projet 1989, en Réhabilitation Loi Malraux
Mission d'étude de Projet, avec Diagnostic, en collaborationRéhabilitations en Secteur Sauvegardé 2 : Sud
REHABILITATION Hotel Dampmartin Uzes
Projet 1988, en Réhabilitation Loi Malraux
Mission d'étude de Projet, avec Diagnostic, en collaborationRéhabilitations en Secteur Sauvegardé 2 : Sud
REHABILITATION Immeuble Rue du 4 Sptembre Beaucaire
Projet 1988, en Réhabilitation Loi Malraux
Mission de Maitrise d'Oeuvre en collaborationRéhabilitations en Secteur Sauvegardé 2 : Sud
REHABILITATION Hotel Margailier Beaucaire
Projet 1987, en Réhabilitation Loi Malraux
Mission Maitrise d'Oeuvre en collaborationRéhabilitations en Secteur Sauvegardé 2 : Sud
REHABILITATION Couvent des Cordeliers Beaucaire
Projet 1987, en Réhabilitation Loi Malraux
Mission Maitrise d'Oeuvre en collaborationRéhabilitations en Secteur Sauvegardé 2 : Sud
REHABILITATION Immeuble Rue Barbes Beaucaire
Projet 1987, en Réhabilitation Loi Malraux
Mission Maitrise d'Oeuvre en collaborationRéhabilitations en Secteur Sauvegardé 2 : Sud
REHABILITATION d'Immeuble Rue Voltaire Beaucaire
Projet 1987, en Réhabilitation Loi Malraux
Mission Maitrise d'Oeuvre en collaborationRéhabilitations en Secteur Sauvegardé 2 : Sud
Rehabilitation Immeuble Divers Sud
Projet 1981, en Réhabilitation Loi Malraux
Mission d'étude de Projet, avec Diagnostic, en collaborationRéhabilitations en Secteur Sauvegardé 2 : Sud
Réhabilitation Immeuble Rue de la République Beaucaire
Projet 1987, en Réhabilitation Loi Malraux
Mission d'étude de Projet, avec Diagnostic, en collaborationRéhabilitations en Secteur Sauvegardé 2 : Sud
Réhabilitation Immeuble Grasses
Projet 1989, en Réhabilitation Loi Malraux
Mission d'étude de Projet, avec Diagnostic, en collaborationRéhabilitations en Secteur Sauvegardé 2 : Sud
REHABILITATION IMMEUBLE Rue Copes Cambes Montpellier
Projet 1986, en Réhabilitation Loi Malraux
Mission Matrise d'Oeuvre en collaborationRéhabilitations en Secteur Sauvegardé 2 : Sud
REHABILITATION Immeuble Imp Coustou Montpellier
Projet 1985, en Réhabilitation Loi Malraux
Mission d'étude de Projet, avec Diagnostic, en collaborationRéhabilitations en Secteur Sauvegardé 2 : Sud
REHABILITATION Hotel de la Monaie Chartres
Projet 1985, en Réhabilitation Loi Malraux
Mission Maitrise d'Oeuvre en collaborationRéhabilitations en Secteur Sauvegardé 3 : Nord
REHABILITATIONS Immeubles Rue de la courroirie Chartres
Projet 1986-88 de rehabilitation en loi Malraux
Mission d'étude de projet en collaborationRéhabilitations en Secteur Sauvegardé 3 : Nord
REHABILITATIONS Immeubles divers à Chartres
Projets 1987-88 en Rehabilitation Loi Malraux
Mission d'étude de projet, en collaborationRéhabilitations en Secteur Sauvegardé 3 : Nord
Rehabilitation Immeuble Auxeres
Projet 1987-89 réhabilitation Loi Malraux
Mission étude de Projet en CollaborationRéhabilitations en Secteur Sauvegardé 3 : Nord
REHABILITATION IMMEUBLE ROUEN Rue Martinville
Projet 87-88 en Réhabilitation Loi Malraux
Mission étude de Projet en CollaborationRéhabilitations en Secteur Sauvegardé 3 : Nord
REHABILITATION IMMEUBLE Laon Rue du Cloitre
Projet 85-87 en rehabilitation Loi Malraux
Mission Etude de Projet en CollaborationRéhabilitations en Secteur Sauvegardé 3 : Nord
REHABILITATION IMMEUBLE Laon Place du Parvis
Projet 86-87 en Réhabilitation Loi Malraux
Mission Etude de Projet en CollaborationRéhabilitations en Secteur Sauvegardé 3 : Nord